A rezoning application has been made for a 29,102 SF site at 3868 Rupert Street (at East 22nd St) for rezoning to allow rental apartments. The site is currently improved with a grocery store – Chong Lee Market and some retail units along with surface parking.

The proposal calls for rezoning from C-1 to CD-1 to permit the development of 6-storey mixed-use building that includes:
- 112 secured market rental units;
- 78 one-bedrooms, 30 two-bedrooms and 4 three-bedrooms
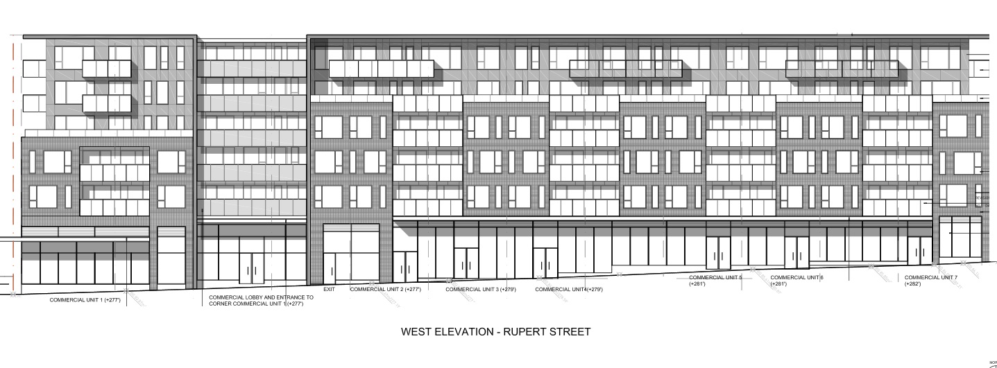
- 10,856 SF retail uses in six CRUs on the ground floor
- a total density 3.60 FSR
- a building height of six storeys ; and
- 158 underground parking spaces.
The application is being considered under the Affordable Housing Choices Interim Rezoning Policy.
The architect, GBL, describes the application:
“This project will take into account these neighbourhood factors by providing appropriate up to date commercial premises for the existing tenants and providing good quality affordable rental accommodation for the locale. The Renfrew Collingwood area has great community facilities and a number of schools close by. With this in mind, over a quarter of the units will be 2 and 3 bedrooms for families.
We are proposing that the site is rezoned for a six storey building which accommodates one floor of commercial, five floors of market rental units above over two levels of underground parking. The project will follow the Rental 100 City Policy. The area of the project is 104,667 SF, yielding an F.S.R. of 3.60. The project proposes six commercial retail units with specific size requirements ranging from circa. 670 SF up to 11,760S SF. Commercial entrances are located on Rupert Street. The Residential Lobby is positioned to the south side of the site at 23rd Avenue allowing for an uninterrupted commercial frontage. The project proposes 112 Rental Units on Levels 2-6 with over a quarter designated as 2+ bedroom family units. The average sizes meet the Rental 100 requirements with 1 beds at 570SF, 2 beds at 730SF and 3 beds at 937SF. We recognize there are good community facilities and schools in the area and our Client wants to provide a range of accommodation types which will appeal to a varied market of future tenants.”